























No items found.
Fay Al Reeman 2
3 - 6
Baths
3250 sqft – 5328 sqft
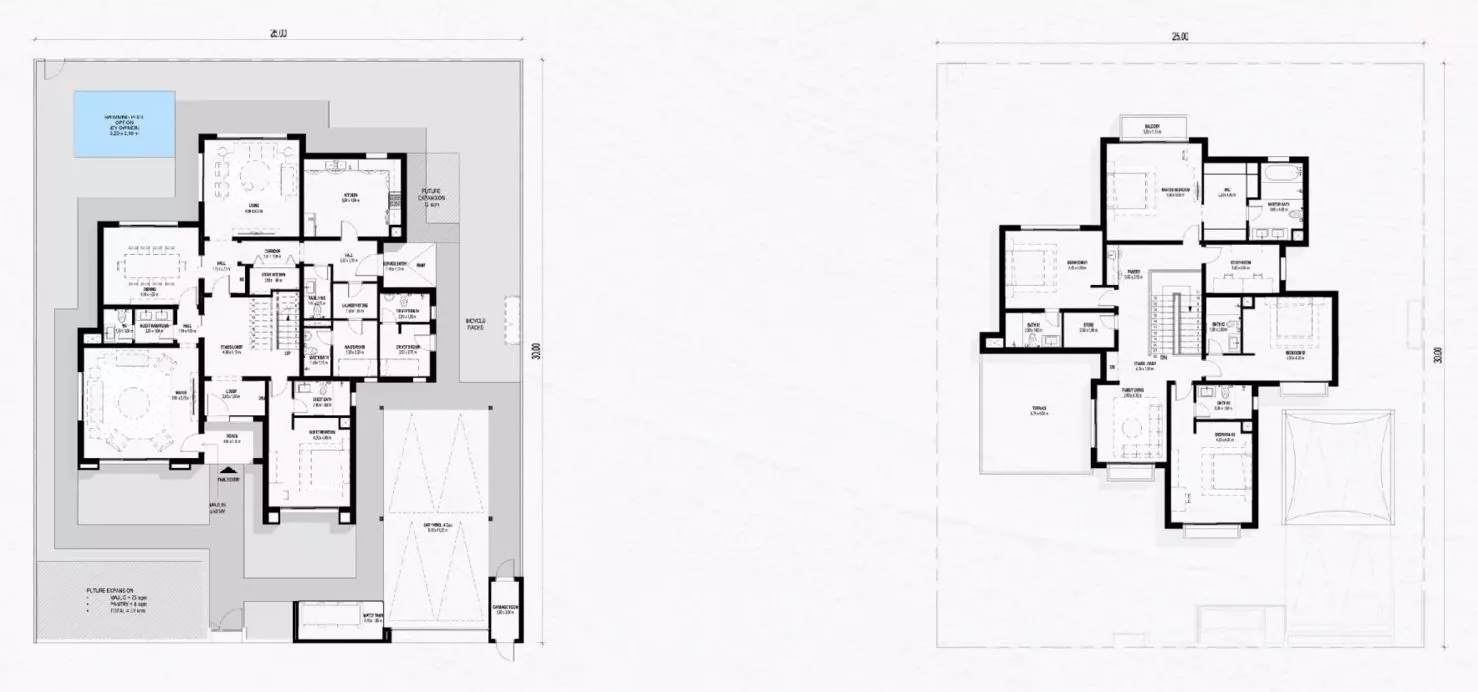
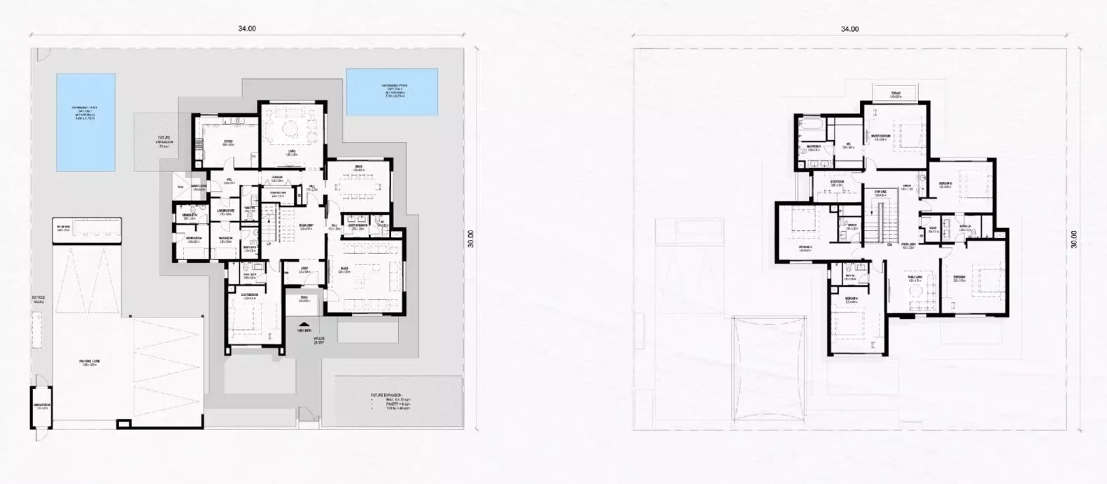
Fay Al Reeman II is the second phase of Aldar Properties’ large-scale Fay Al Reeman community located in Abu Dhabi, in the Al Shamkha district, which is far from the bustling capital city. The project, presented in February 2023, is the latest addition to the Alreeman freehold area and will comprise 557 three–six bedroom villas ranging in size from 3,272 sq. ft to 5,238 sq. ft. All homes will be 2-storey’s with layouts including balconies, terraces, indoor and outdoor majilis and a maid’s bedroom. Detached plots range in size from 5,705 sq. ft to 11,570 sq. ft and can be fitted with an optional private swimming pool. The residences will also have 2–5 parking spaces depending on their size.
Villas will be unfurnished so you can customize the living spaces to your liking. For the maximum comfort of residents, all residences will be equipped with DX split air-conditioning systems. The community is focused on sustainability and has been awarded 2 pearls in Estidama’s sustainability rating system. Specifically, the building will use highly reflective roofing material, low-emission paint and adhesives, LED lighting, a solar water heater and low-water consumption equipment.
Interested buyers and investors can choose from 2 types of villas (Modern and Contemporary) and two types of finishes — in light or dark tones. In addition, premium finishes are available, which include parquet flooring in the bedrooms and luxury porcelain stoneware flooring in the other rooms, natural stone staircase cladding, as well as other benefits. The premium furnishings will also include kitchen and laundry appliances, consisting of a washer and a dryer, a cooker hood, a microwave oven, a refrigerator and a dishwasher.
Villas will be unfurnished so you can customize the living spaces to your liking. For the maximum comfort of residents, all residences will be equipped with DX split air-conditioning systems. The community is focused on sustainability and has been awarded 2 pearls in Estidama’s sustainability rating system. Specifically, the building will use highly reflective roofing material, low-emission paint and adhesives, LED lighting, a solar water heater and low-water consumption equipment.
Interested buyers and investors can choose from 2 types of villas (Modern and Contemporary) and two types of finishes — in light or dark tones. In addition, premium finishes are available, which include parquet flooring in the bedrooms and luxury porcelain stoneware flooring in the other rooms, natural stone staircase cladding, as well as other benefits. The premium furnishings will also include kitchen and laundry appliances, consisting of a washer and a dryer, a cooker hood, a microwave oven, a refrigerator and a dishwasher.
MAP
For Enquiry
Oops! Something went wrong while submitting the form.
Payment Plan
10
%
1st Installment
50
%
Under-construction
40
%
On Handover
0
%

Post Handover
MORE PROPERTIES

Crafted for the Elite
We design more than buildings — we create legacies. Reach out to claim your piece of timeless living.
.png)







