





No items found.
Oceano
1 - 4
Baths
714 sqft – 22128 sqft
Oceano is a premium residential development by The Luxe Developers on Al Marjan Island in Ras Al Khaimah. Overlooking the Arabian Gulf, the complex will consist of 2 twin 17-storey towers, which will have free flowing glass facades with minimalist frames. The entrance of Oceano will wow occupants and guests alike with a dynamic cascading fountain and landscaping.
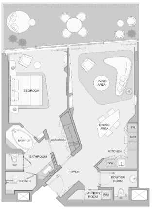
The complex will feature 206 residential units, namely 1–4 bedroom apartments, 6 duplex penthouses and 2 sky villas. The property sizes range from 714 sq. ft to 22,128 sq. ft. The interiors of Oceano apartments will have a futuristic concept with smart technology integrated throughout.
The complex will feature 206 residential units, namely 1–4 bedroom apartments, 6 duplex penthouses and 2 sky villas. The property sizes range from 714 sq. ft to 22,128 sq. ft. The interiors of Oceano apartments will have a futuristic concept with smart technology integrated throughout.
MAP
For Enquiry
Oops! Something went wrong while submitting the form.
Payment Plan
20
%
1st Installment
50
%
Under-construction
30
%
On Handover
0
%

Post Handover
MORE PROPERTIES

Crafted for the Elite
We design more than buildings — we create legacies. Reach out to claim your piece of timeless living.
.png)







