


















No items found.
South Bay 6
3 - 7
Baths
2915 sqft – 13682 sqft
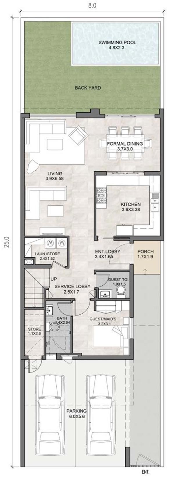
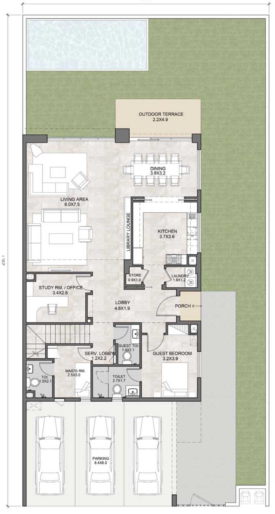
South Bay at Dubai South is an exceptional development by Dubai South Developer, set to redefine luxury living with premium 3 to 7 bedroom villas, townhouses and mansions. Strategically located in the residential district, this exclusive gated community offers a unique blend of premium residential units centered around a stunning 03-kilometer crystal lagoon. The façades are designed to cater to the discerning tastes of modern residents, offering a variety of housing options, including townhouses, semi-detached homes, and grand mansions, each providing breathtaking views and world-class facilities.
This is not just about luxurious homes; it’s about creating a lifestyle that is expansive, limitless, and infinite. The crystal lagoon is the heart of this community, providing a serene and picturesque setting where residents can unwind, sunbathe on the pristine beaches, or engage in exciting water sports. The lagoon’s clear waters and beautifully landscaped surroundings make it a focal point for relaxation and recreation.
The development is thoughtfully designed to meet the diverse needs of its residents. Whether you’re looking to relax, indulge in gourmet dining, spend quality time with family and friends, or focus on work, it has something for everyone. The development comes in five phases starting from the first to the phase five, offering premium choice of homes for everyone, each housing over 1,200 units. This layout not only ensures that each home enjoys stunning lagoon views but also fosters a sense of community and belonging among residents.
The community is built to enhance the lives of its inhabitants. It’s designed to be a fully integrated and sustainable environment, offering a wide range of residential options to suit various lifestyles. The city is strategically built around what will become the world’s largest airport, ensuring excellent connectivity and accessibility. This makes this an ideal place for both residents and investors, providing easy access to major highways, business districts, and key landmarks such as Expo Road.
The development is underpinned by a vision of creating an inclusive and cohesive community. The smart and sustainable design of Dubai South supports this vision, promoting a lifestyle that is not only luxurious but also environmentally conscious. Residents can enjoy modern conveniences while being part of a community that values sustainability and well-being.
This is not just about luxurious homes; it’s about creating a lifestyle that is expansive, limitless, and infinite. The crystal lagoon is the heart of this community, providing a serene and picturesque setting where residents can unwind, sunbathe on the pristine beaches, or engage in exciting water sports. The lagoon’s clear waters and beautifully landscaped surroundings make it a focal point for relaxation and recreation.
The development is thoughtfully designed to meet the diverse needs of its residents. Whether you’re looking to relax, indulge in gourmet dining, spend quality time with family and friends, or focus on work, it has something for everyone. The development comes in five phases starting from the first to the phase five, offering premium choice of homes for everyone, each housing over 1,200 units. This layout not only ensures that each home enjoys stunning lagoon views but also fosters a sense of community and belonging among residents.
The community is built to enhance the lives of its inhabitants. It’s designed to be a fully integrated and sustainable environment, offering a wide range of residential options to suit various lifestyles. The city is strategically built around what will become the world’s largest airport, ensuring excellent connectivity and accessibility. This makes this an ideal place for both residents and investors, providing easy access to major highways, business districts, and key landmarks such as Expo Road.
The development is underpinned by a vision of creating an inclusive and cohesive community. The smart and sustainable design of Dubai South supports this vision, promoting a lifestyle that is not only luxurious but also environmentally conscious. Residents can enjoy modern conveniences while being part of a community that values sustainability and well-being.
- Shared Gym
- Shared Pool
- Children's Pool
- Children's Play Area
- Barbecue Area
- Shared Spa
MAP
For Enquiry
Oops! Something went wrong while submitting the form.
Payment Plan
0
%
1st Installment
60
%
Under-construction
20
%
On Handover
20
%

Post Handover
MORE PROPERTIES

Crafted for the Elite
We design more than buildings — we create legacies. Reach out to claim your piece of timeless living.
.png)








